地磅基礎介紹
發布時間:2024.03.22作者:超級管理員來源:本站點擊:476
地磅基礎介紹
一.地基分無基坑式與淺基坑式兩種:
1.淺基坑式基礎安裝的秤體與地面齊平,其優點在于占用場地少,汽車上下秤較方便,但采用此形式時,須特別注意坑內的排水及干燥。
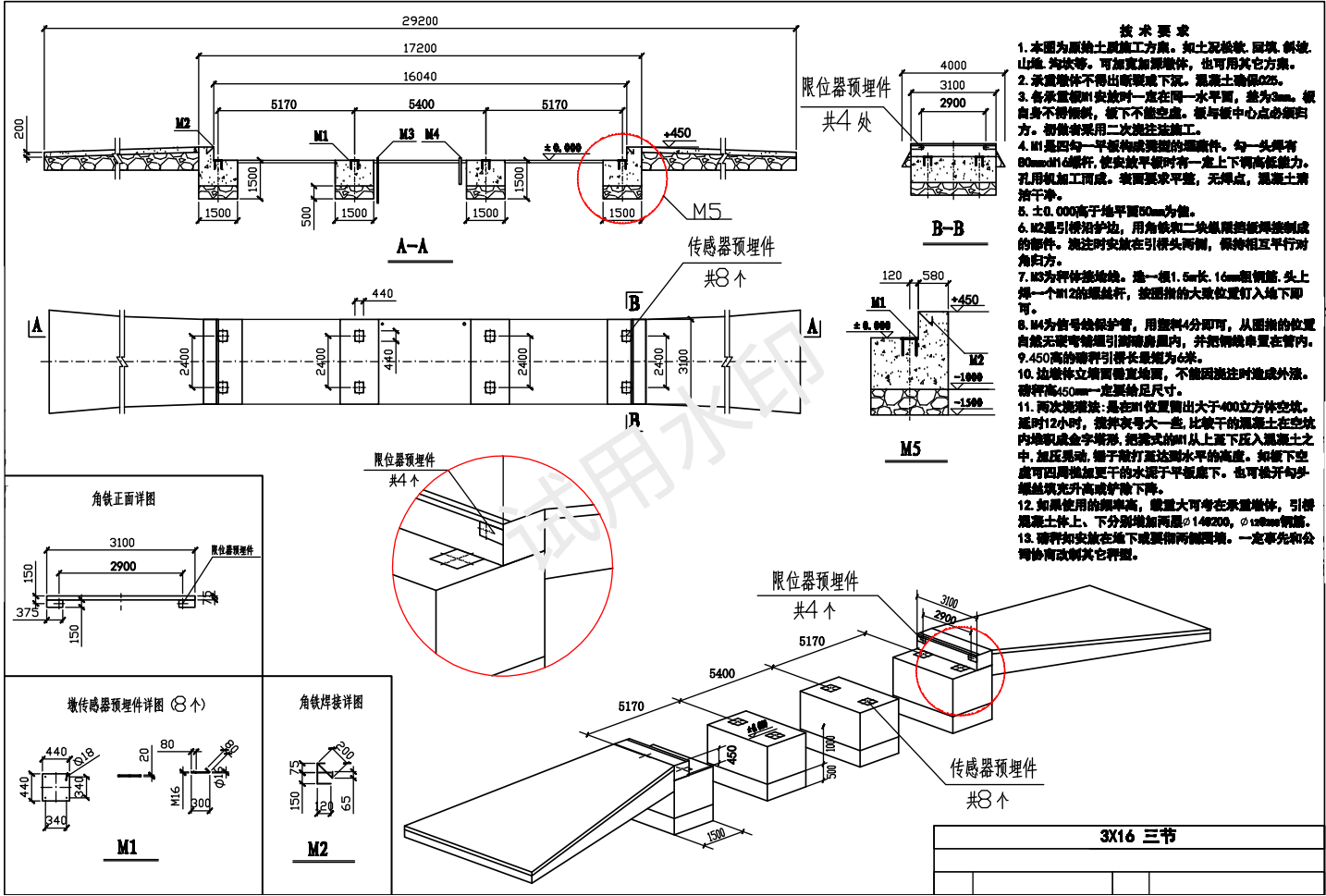
2.無基坑式基礎安裝的秤體會高出地面,故須制作可使汽車上下的引坡,因而其占用場地較大,但其良好的通風干燥環境,可確保地磅一直保持理想的使用狀態,且易于維護。因基礎是保證地磅正常使用及整體品質的一個組成部分,故基礎制作須嚴格把握施工質量。
二.關于地磅基礎施工的幾點建議:
地磅基礎的安裝和施工位置應有良好的排水通道,安裝的位置不能低于四周,否則會因地勢低,下雨時造成積水,淹沒地磅,損壞傳感器。對于淺基坑更應設置排水通道。另外兩端必須有足夠長度的平直路供汽車上下秤臺,兩端自道要至少等于秤臺長度。
三.地磅基礎注意事項:
滌筑凝土基礎,此基礎須開挖到當地凍土線以下,在施工中應保證混凝土標號,澆預埋件是要保證水平度、位置度等尺寸,在澆灌混凝土時還要保證預埋件不移位。基礎澆筑完工后,應按土建規范養護,混凝土達到設計強度指標方可安裝地磅。
如果要縮短養護周期,允許施工時在專業技術人員指導下來取加"早強劑"等措施,為防雷您應根據本地條件設置一根接地樁,并確保接地電阻<4歐,從秤臺中心的位置到磅房應鋪設一根鐵管,用于穿信號電纜線。基礎施工時請參考我公司的基礎圖,一般的施工周期加上基礎保養期,前后大概時間根據季節及天氣因素都有關系。
